Business Floor Pro Installation

Construction and Design:

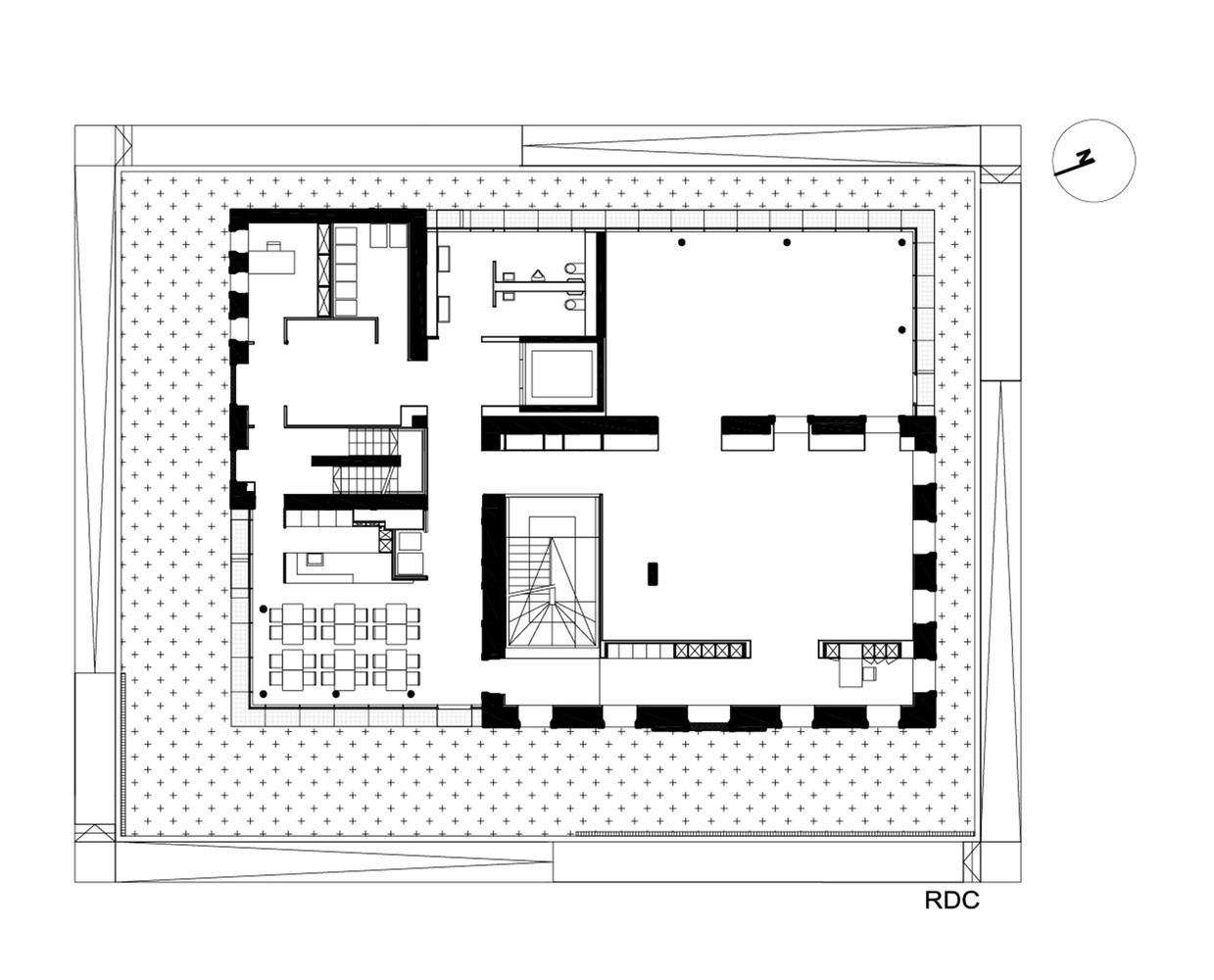
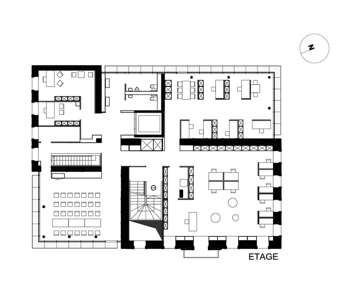
The architects added a glass volume to the building. This renovation further reinforces the modern minimalist style—where the sleek glass components nestle and integrate with the classical facade of the original villa. It not only preserves the original building’s structural integrity and stylistic essence but also balances the visually dense feel of the villa’s historic facade through the transparent texture of glass. The result is a structure that retains its historical charm while embodying the simplicity and elegance of contemporary aesthetics, ultimately forging a unique style of harmonious coexistence between the old and the new.
  • 10
    10
    • 09
      09
      • 08
        08
        • 07
          07
          • 06
            06
            • 05
              05
              • 04
                04
                • 03
                  03
                  • 02
                    02
                    • 01
                      01
关注官方微信

TEL:204 963 8283    EMAIL:admin@yongjia.ca

Copyright © 2020-2025 YONGJIA RENOVATION All rights reserved    Address:688 Townsend Ave, Winnipeg Manitoba R3T 2V2